Initial Consultation.
When this Fulford family first contacted us in December 2024, their message was straightforward: “We are looking into building an orangery extension. We live in Fulford in a conservation area so will need to submit plans.”
After an initial phone call to discuss their ideas, we arranged a design consultation for early December. It became clear this project would be about more than just adding square footage. They had a beautiful modern double-fronted home on a popular new build estate, complete with traditional features like bay windows, sliding sash windows with stone cills, and reclaimed brickwork. But the existing kitchen layout wasn’t working for family life.

The brief and process.
The property sits in a popular part of York on a new build estate, within a conservation area. The house is a modern double-fronted property with traditional features that give it real character.
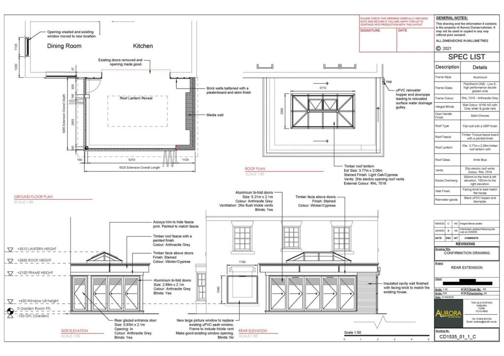
The homeowner was open to ideas, but their vision was clear: extend to the rear of the property to create a new large open-plan kitchen and family living area. Due to the size of extension they wanted and the first floor window arrangement, an orangery with a flat roof was the ideal solution.
Their vision included:
- Removing the existing kitchen and relocating a new kitchen to the other side of the room to create a larger space
- Creating a new dining area where the old kitchen was
- Removing the existing bifold doors to create a new opening into the extension
- Making something stunning that would become the heart of the home for the whole family
They had a beautiful house already but wanted to create a space where everyone could genuinely spend time together. The project required planning approval, which we would handle from start to finish.
The Architectural Design: A Thoughtful, Contextual Approach
The design process started with initial plans to help illustrate multiple ideas on how the extension would function for the family and integrate with the new kitchen layout and dining area. We also presented budget costs, which helped guide decisions and allowed the design to develop naturally.
What became clear was that the family was open to ideas and willing to push the design to create something truly bespoke. This is where we really came into our own, offering architectural design thinking that set us apart from other companies they’d spoken to.
We proposed a modern yet sympathetic solution that delivered real visual impact using a balanced mix of modern and traditional materials. The extension was constructed using:
- Matching reclaimed brickwork
- Large aluminium corner bifold doors with a slimline corner post clad in aluminium to match the doors. This slimline corner improved sightlines into the garden and created a real connection to the outdoors when both sets of bifold doors are opened
- Flat roof construction with overhang and soffit lighting
- Designed and manufactured in our own workshop
- Feature stained Accoya timber trims above the doors and separating the single entrance door
- Bespoke Accoya/Tricoya timber fascia with detailing
- Timber roof lantern with stained finish and electric roof vents
- High-performance glazing throughout in doors and roof lantern
The proposal also included the following additional works:
- A large aluminium picture window with stone cill in the new dining area, replacing the existing kitchen window on the rear elevation. This created an architectural feature and uninterrupted views into the garden
- New window in dining room added to side elevation to provide a second aspect and extra natural light
- Media wall in extension to add a focal point for the space
- Underfloor heating within the extension
- Finished flooring and skirting boards
- External patio area


Technical Considerations
Because the extension integrated with the main house and has a solid roof, full Building Regulations approval was required. We handled all technical aspects, including:
- Structural calculations
- SAP energy performance assessments (Approved Document L – Conservation of Fuel and Power)
- Detailed compliance documentation
All of this was included within the project scope and managed by our team, giving the family one less thing to worry about.

The Build
The family chose our turnkey service where the on-site build was carried out by our team along with our trusted sub-contractors – in this case plasterers, electricians and plumbers.
There were many elements to this project to manage and bring together. The family decided to manage the kitchen purchase and installation themselves, so we worked closely with them and their contractor to coordinate the work properly.
All queries, additions and changes were dealt with efficiently along the way by our site team and management, keeping standards high throughout.
Additional work included:
- Bespoke window seat in dining room with lighting above
- Additional electrical work in kitchen
- Full decoration throughout
The Result: A Light-Filled, Functional Space
TThe finished extension delivers exactly what the family envisioned:
- An architecturally designed extension unique to them
- A spacious, functional family kitchen and living area
- Bright, open views to the rear garden
- Complete integration with the existing property
The space has become the heart of their home, flooded with natural light and perfectly suited to how this family actually lives. The careful detailing means the extension looks like it’s always been there, not an obvious add-on.




We couldn’t happier with our extension. We weren’t sure exactly what we wanted but the design evolved as a result of numerous useful meetings. The work has been done to a high standard and all members of the team, from planning to finishing touches, were professional, considerate and friendly. Any queries or requests along the way have been dealt with efficiently and with an open mind. As well as the Orangery, Aurora were able to offer a range of other building, plumbing and electrical services. They may not be the cheapest option but we would definitely recommend them to anyone wanting high quality workmanship and customer service.
Thinking of Extending in a Conservation Area?
Aurora Glazed Rooms specialises in bespoke glazed extensions, even in sensitive or conservation-designated locations. From planning and design to construction and compliance, we manage the entire process — so you can focus on enjoying your new space.
Based in Yorkshire – Serving clients across the region
Contact us today for a free Design Consultation